[email protected]


Logo
Become a member
Our Home Ground

Plans for a New Pavilion

Initially, Sunningwell CC had a wooden annex, rather than a pavilion - operating as predominantly a place for players to change than a venue to meet.

Custom image

Our current pavilion has was built in the 1970s and has stood the test of time since then, however it is now showing signs of significant wear and tare. 

Custom image

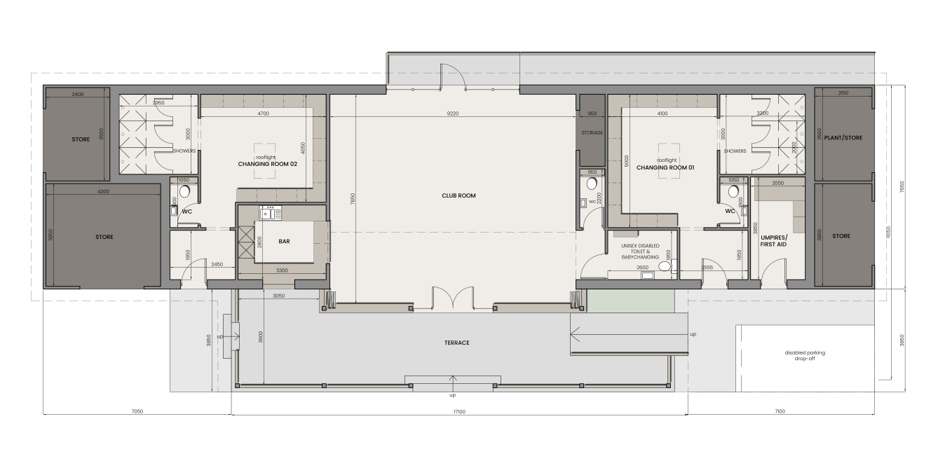
Having achieved its half century, our pavilion is in need of replacement, not least of which to reflect the changing world in which we live. Modern league requirements include dedicated facilities for umpires, separate changing rooms for each gender, regulated numbers of showers etc.

Custom image

The current footprint of the pavilion simply doesn't allow itself to accommodate all these needs. Moreover, if the pavilion was better equipped and designed, it allows the potential to become a hub for the Sunningwell community. So in early 2025, plans were drawn up to redevelop the site and build a new pavilion.

Custom image
Custom image

Building a new pavilion takes a lot of time and effort from our volunteers, so if you can help in any way, please get in contact. It also requires a lot of capital to make happen, so Sunningwell CC has a number of fundraising events - not least of which is our annual "24 Hours of Cricket".

Donations Page